Tekeningen: Efteling bouwt nieuwe toiletruimte in het Sprookjesbos, naast Meisje met de Zwavelstokjes
01-02-2026, 16.52 uur
FOTO'S De Efteling is nog steeds van plan om een nieuw toiletgebouw neer te zetten in het Sprookjesbos, naast Het Meisje met de Zwavelstokjes. Daarvoor werd al in juli vorig jaar een vergunning aangevraagd. Sindsdien bleef het stil, maar het project is nog niet van tafel.
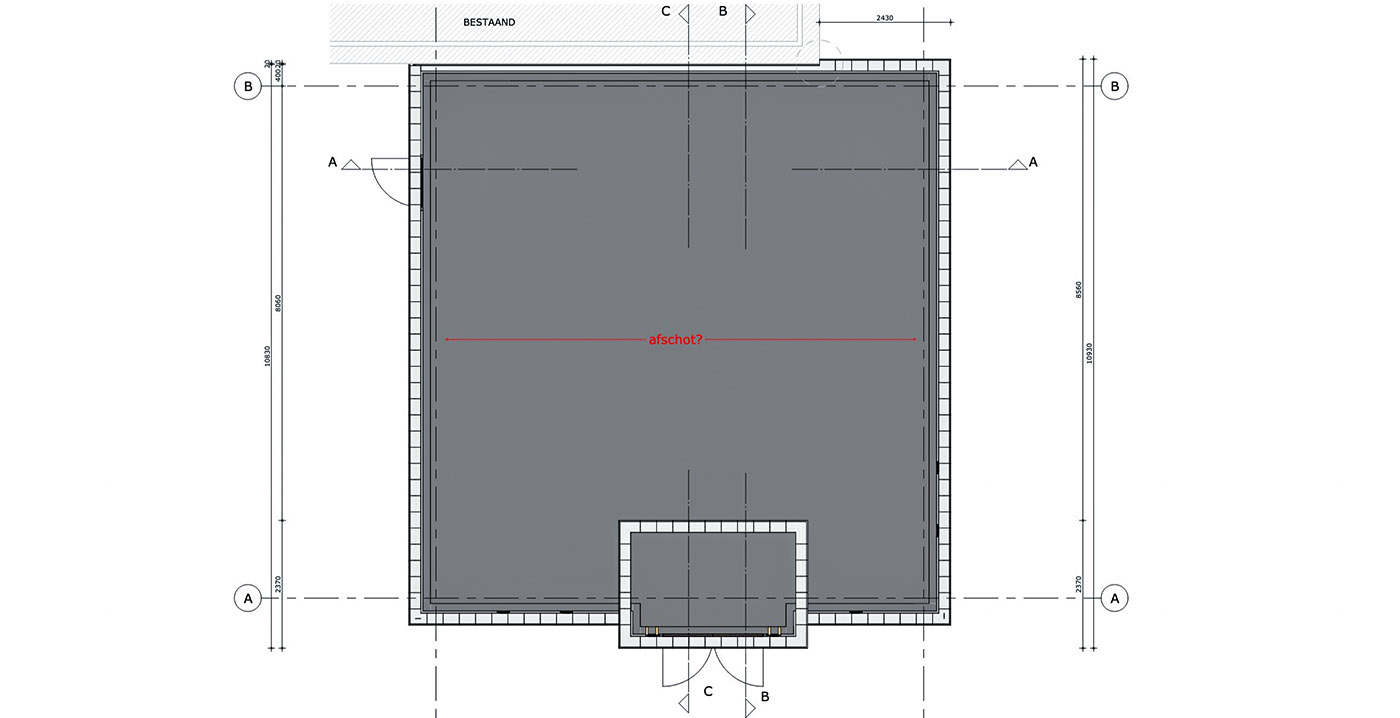
Bouwtekeningen, opgevraagd bij de gemeente Loon op Zand in het kader van de Wet Open Overheid, laten zien hoe de toiletruimte eruit moet komen te zien. We zien een vooraanzicht, twee zijaanzichten en een bovenaanzicht.
Het bouwwerk werd vormgegeven als een kasteeltje met kleine raampjes, passend bij het naastgelegen sprookje: het exterieur van Het Meisje met de Zwavelstokjes bestaat uit een stadje en een grote stadsmuur met kantelen, die de loods van De Indische Waterlelies aan het zicht onttrekt.
Sprookjesbibliotheek
De toiletten komen links naast de entree van het sprookje te liggen. Wanneer de werkzaamheden zullen beginnen, is nog niet duidelijk. Wel staat vast dat het Sprookjesbos vanaf maart ingrijpend op de schop gaat vanwege de bouw van de Sprookjesbibliotheek en de vervanging van De Chinese Nachtegaal. Er komt dan ook een extra zij-ingang voor het bos, ter hoogte van De Vliegende Fakir.



















